2016 - 2017
Units, Scales and Measures
-
Danae Haratsis (2nd Year)
No Standards
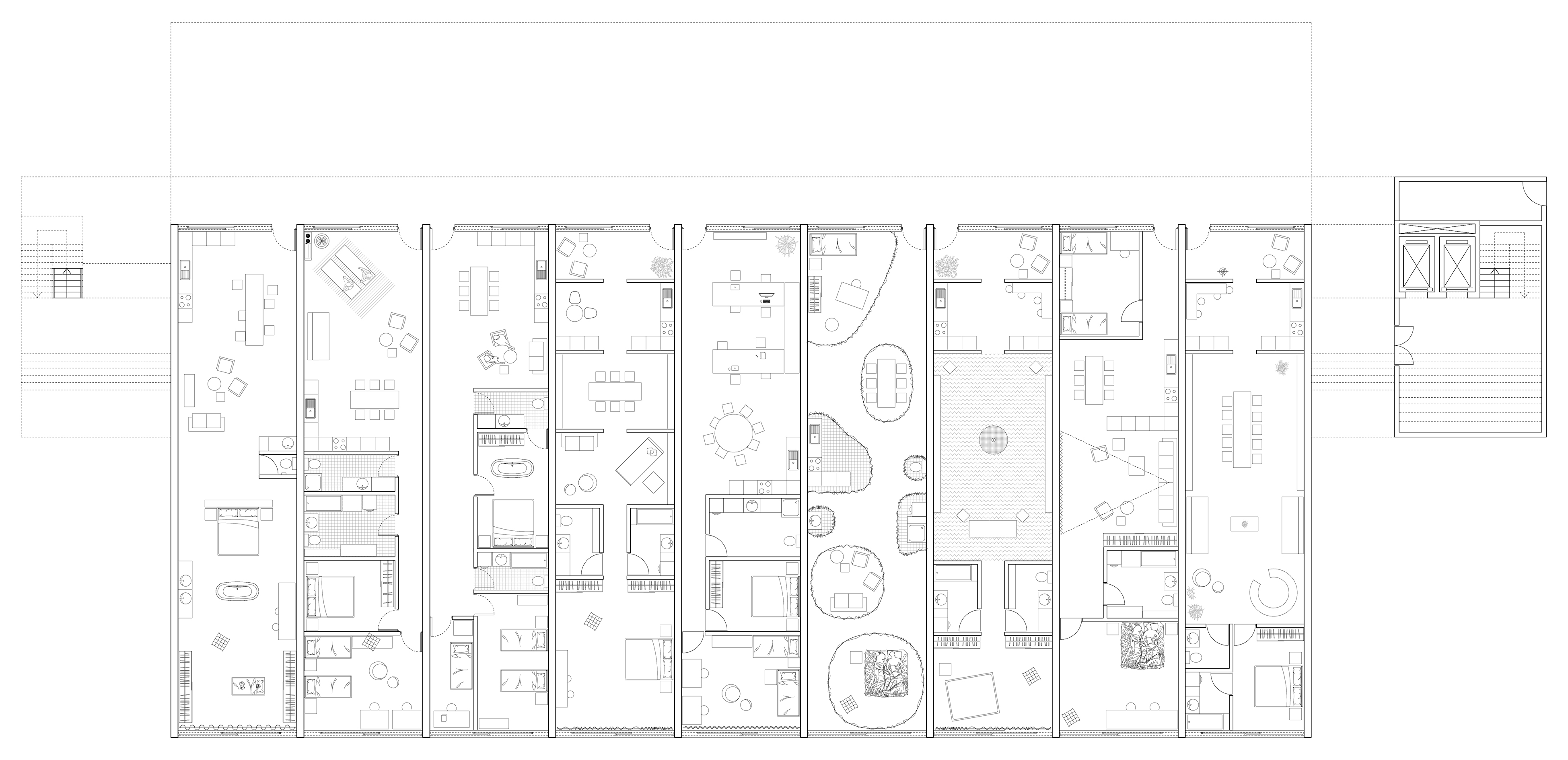
The past decade has seen an increasing fetishization
of small spaces. Capitalising on this shift of common desires, developers tend
to reduce the size of dwellings whilst trying to minimise any reduction in
value. Rather than being a safety net the minimum is almost interpreted as a
statement of good practice; in this context, the minimum becomes the standard.
Current real estate developments are tangible examples of real estate value
trades - within the same building, for two identical flats, the value keeps on
increasing as one goes higher up in floors. It is the view that is commodified
and sold in this case. Would it be possible to reverse this system in place,
keeping price rather than space as a constant, and to create apartments that
reflect the trades their inhabitants make? No standard takes on the lack of
affordability and excessive standardisation of housing in London. It aims to
provide a means of bypassing the negativity implied when working with minimum
standards, as well as the imposition of prescribed lifestyles upon inhabitants.
No standard creates places responding to the way that people want to live.
---
Find out more with Danae’s research article ->
---
Find out more with Danae’s research article ->
© Copyright 2014-2017 Institutional Forms and Urban Logics - if you have any questions please email admin@institutionalforms.com