2016 - 2017
Units, Scales and Measures
-
Pierre Shaw (1st Year)
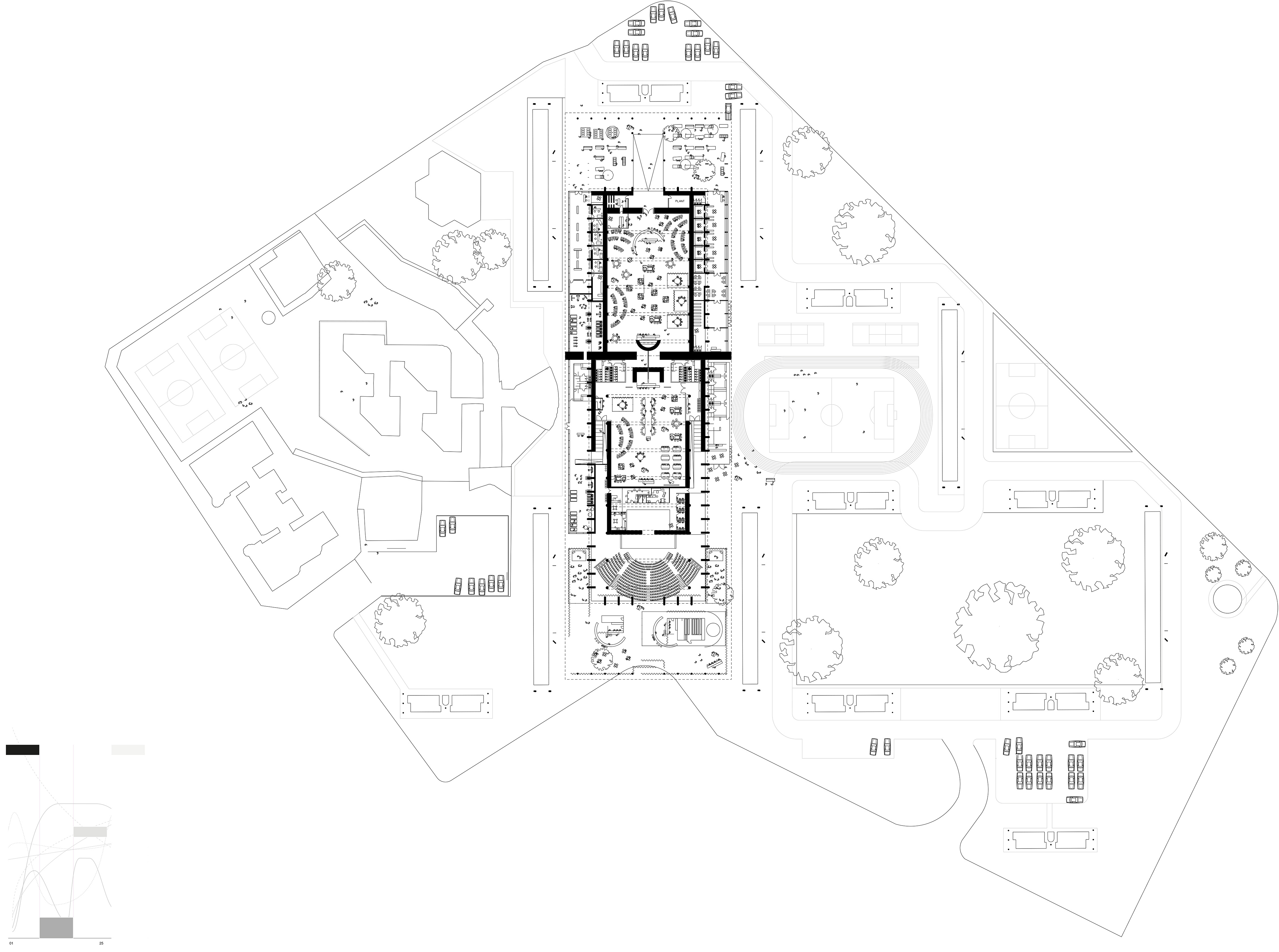
Jubilee
The economic cycles of boom and bust have
long perplexed economists who provide much analysis on their mythological
origins and like shamens offer predictions of financial futures. The city, as a
product of the financial imperative, also operates on a cyclical basis.
Property and construction are fueled by investment gambles and dominate the
debt economy. This project, Jubilee, aims to establish a robust civicness using
the very gambling methodology financial institutions employ. The vice
industries - as they’re known - enjoy the benefits of a stable lineal growth
over time, bisecting the ups and downs of boom and bust. Jubilee therefore
proposes London’s first cooperatively owned monument to economic times, a
gambling and gaming space within The Hallfield estate that guarantees
investment into the civic function of the estate.
---
Find out more with Pierre’s research article ->
---
Find out more with Pierre’s research article ->
© Copyright 2014-2017 Institutional Forms and Urban Logics - if you have any questions please email admin@institutionalforms.com